www.LakeDoraWaterfront.com

Scroll to Content

Details

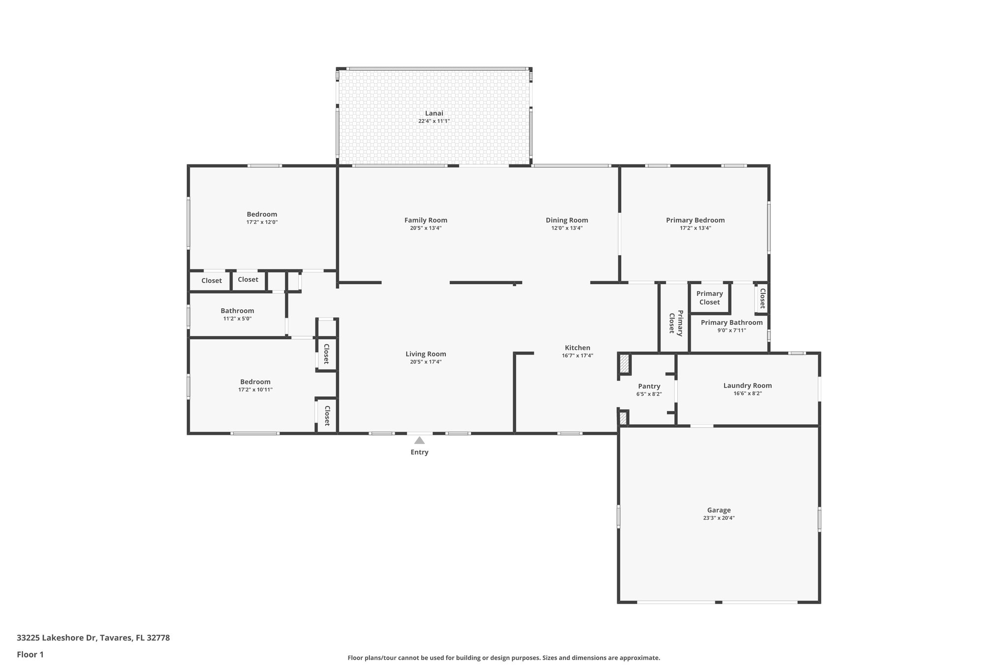
LAKEFRONT PARADISE ON LAKE DORA – THE HARRIS CHAIN OF LAKES. Imagine sun-drenched days, gentle lake breezes, swaying palms, and vibrant sunsets reflecting across the sparkling waters of Lake Dora and the coveted Harris Chain of Lakes. This is your opportunity to claim a private slice of tropical lakefront bliss — complete with a recently updated dock with covered boat slip. Start your mornings with coffee on the dock as the water softly laps the shoreline, and wind down your evenings under painted skies as nature provides the perfect soundtrack. Launch a kayak or cruise out on your boat to explore Lake Dora’s hidden coves, winding canals, and interconnected lakes — offering endless adventure, dining destinations, waterfront festivals, and year-round recreation. Set back from the road on a lush .69-acre homesite framed by grand cypress trees, towering pines, and ornamental palms, this lovingly maintained home welcomes you with warmth and tranquility. Major updates include A/C (2025), septic system (2025) and roof (2020) for peace of mind. A long driveway leads to an expanded parking pad and oversized two-car garage. A paved path guides you to the inviting front porch, and once inside, you’re greeted by expansive floor-to-ceiling windows showcasing breathtaking panoramic lake views. Natural sunlight fills the spacious interior, creating a bright and uplifting atmosphere. Designed for effortless entertaining, the flexible floor plan features attractive, low-maintenance tile and terrazzo flooring throughout. The front sitting room, kitchen, and combined living/dining areas all capture stunning water views and provide access to the beautiful lanai, where surrounding slider windows maximize breezes and relaxation. The open kitchen is both functional and inviting, offering wood cabinetry, stainless steel appliances, and an oversized walk-in pantry, which connects the spacious laundry room, complete with sink and additional storage. The split-bedroom layout ensures privacy for family and guests alike. The primary suite is a peaceful retreat where you’ll wake each morning to serene lake views. The en-suite bath features a quartz vanity, tiled tub/shower, and walk-in closet. Two additional bedrooms share a full hallway bath with a quartz vanity and shower — one guest room even enjoys beautiful lake views. Step outside to discover multiple backyard patios ideal for summer BBQs and gatherings. With generous space to design your dream outdoor oasis — think decks, firepit, or even a hot tub — the possibilities are endless. And of course, the true magic awaits at the water’s edge. Wander down to the dock, feel the breeze, and let the sparkling lake restore your spirit. Located near parks, popular restaurants, shopping, and all that vibrant Tavares — America’s Seaplane City — has to offer, including lively waterfront festivals and community events. Come live your best Florida lake life in waterfront paradise.

  • $1,000,000
  • 3 Bedrooms
  • 2 Bathrooms
  • 2,078 Sq/ft
  • Lot 0.69 Acres
  • 2 Parking Spots
  • Built in 1959
  • MLS: G5108512

Images

Videos

Floor Plans

3D Tour

Contact

Feel free to contact us for more details!

Loretta Maimone

Loretta Maimone

ERA Grizzard Real Estate

+1352-357-2400

info@maimone1.com

http://www.Maimone1.com

License #: BK3118600

ERA Grizzard Real Estate